建構自己的家園
Jan 03. 2022
會購買有著老屋建地是有原因的,在台灣房地產多年熟知土地和建築法規的我,需要在有限的資金和時間裡,找到自己適合的遷居方式 - 老屋正好符合這樣的需求 - 不需要花錢請建築師請照、不需要時間跑流程,可以隨時搬遷進住來認識土地和環境,而且配合著當時需要小學入學的女兒及即將出生的兒子。
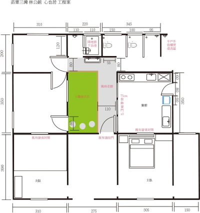
一字型的客家傳統老屋是最簡易的構造,只有十五坪的一間起居室、一個入門客廳、一間廚房兼餐廳和衛浴廁所,但老屋狀況還可以,也留下了老櫥櫃等傢俱。首先要處理的是滿足機能性空間的改造。
有著設計背景及房地產經驗的我,自行繪製工程圖及量測尺寸、並開始四處收集廢材及門窗、找在地的砌磚師傅來完善整個空間的機能。



過程中因為正是懷孕大腹便便之時,顯得格外力不從心,但也只能努力的為此四處奔走,畢竟為了女兒要在當地小學入學,時間刻不容緩,遷居時因為是先賣掉台北的房產,以致於也只能暫時寄居桃園婆家,每次往返苗栗到桃園對孕婦來說也是頗為辛苦。時值烈日當中的夏季,在還沒有電及廁所的基地整日的全程自行監工,因為是小預算的工程,工人們的確有許多未盡之處,需要時時提醒和溝通,過程中常發現重大的施工錯誤,幸好初期大多都受到我的指正,只是越到孕期後期,我越無法全心看顧,以至於仍有許多施工未如預期的部分,如排水設施的高低差以及廁所方向、開門的位置等細節,讓我感到一個建築工程真的是失之毫釐差之千里,馬虎不得。

工程也要看天候、氣象、看工人的心情、昨日是否喝酒宿醉等等... 諸多變數之下,終於最後完工。
我們搭蓋了基地老屋後方室內約15坪的ㄇ字型空間,中間留給一方天井與綠土,盡量用最少的水泥覆蓋空間,盡力把最多的空間還歸給自然與土地來呼吸。雖然如此每當看到土地被水泥攪拌車開入、被怪手開挖整地、被水泥污水掩蓋時,還是感到怵目驚心,感嘆人為破壞的力量似乎無可避免,只能保持意識的盡力降低,並且期許有一天能在自己這塊土地上以雙手建築、改造出自然材搭蓋的家屋-這大概就是後半生最大的目標和動力了吧- 現在的我較大的心意還是先盡好為人母和成為人(學習與自然共生的人)的職責。

終於屋舍的大架構跟空間都完成了,望著空蕩蕩、什麼都沒有的水泥、紅磚、木樑屋舍,可想而知入住後還有很大一段路要走吧!但這也是我希望的-接下來能有夠更多親手創造、改進的可能。
後記: 居住三年後,最感到當初應該堅持設計好的應該是排水了,因為我們生活上都沒有使用化學性清潔劑,而且偶有泡澡習慣,很希望使用後的水可以直接排流利用在自己前院的土地上或生態池中,但當初因為土地地勢平坦,施工人員認為高低差施作不易容易倒灌,就沒去考量堅持,這部分卻是比較難自行改善的部分。
